一、实验目的
掌握LPC2378芯片的编程方法
掌握LCD的驱动以及显示方法
二、实验材料
具有串口通讯的电脑一台
ADS1.2开发环境
J-Link-ARM仿真器一个
LPC2378节点板一个
继电器传感器模块一个
三、实验原理
直流电机实验环境由PC机(安装有Windows XP操作系统、ADS1.2集成开发环境和J-Link-ARM-V410i仿真器)、J-Link-ARM仿真器、NXP LPC2378实验节点板、直流电机实验模块和LCD显示实验模块组成,如图3.4.1所示。

图3.4.1 传感器实验环境
(1) 继电器的用途
单片机、嵌入式系统等是一个弱电器件,一般情况下它们大都工作在5V甚至更低,驱动电流在mA级以下。而要把它用于一些大功率场合,比如控制电动机,显然是不行的。所以,就要有一个环节来衔接,这个环节就是所谓的”功率驱动”。继电器驱动就是一个典型的、简单的功率驱动环节。在这里,继电器驱动含有两个意思:一是对继电器进行驱动,因为继电器本身对于单片机来说就是一个功率器件;还有就是继电器去驱动其他负载,,比如继电器可以驱动中间继电器,可以直接驱动接触器。所以,继电器驱动就是单片机与其他大功率负载接口。
(2) 继电器的电路组成及部件作用
本次试验使用的继电器是松乐继电器。电磁继电器一般由铁芯、线圈、衔铁、触点簧片等组成的。只要在线圈两端加上一定的电压,线圈中就会流过一定的电流,从而产生电磁效应,衔铁就会在电磁力吸引的作用下克服返回弹簧的拉力吸向铁芯,从而带动衔铁的动触点与静触点(常开触点)吸合。当线圈断电后,电磁的吸力也随之消失,衔铁就会在弹簧的反作用力返回原来的位置,使动触点与原来的静触点(常闭触点)释放。这样吸合、释放,从而达到了在电路中的导通、切断的目的。对于继电器的“常开、常闭”触点,可以这样来区分:继电器线圈未通电时处于断开状态的静触点,称为“常开触点”;处于接通状态的静触点称为“常闭触点”。继电器一般有两股电路,为低压控制电路和高压工作电路。
松乐RD-5VDC-SL-C继电器其电路图如图3.4.2所示。

图3.4.2松乐SRD-5VDC-SL-C继电器电路图
如下图3.4.2所示,三极管Q2很重要。三极管是电子电路里很重要的一个元件,三极管有两个作用:一个是放大作用;一个是开关作用(严格来讲开关作用是放大作用的极限情况)。为了便于理解,首先把三极管想成一个水龙头。上面的VCC就是水池。继电器是一个水轮机,下面的GND是比水池低的任何一点。三极管就是水龙头,它的把手就是那个带有电阻的引脚。
当J-LINK-ARM的某一个需要控制这个继电器电路的输出引脚就是一只“手”当单片机的这个引脚输出低电平的时候,就像“手”在打开三极管“水龙头”,水就从上往下流。继电器“水轮机”就开始转起来了。反之,如果是输出高电平,“手”就开始关“关水龙头”,继电器“水轮机”因为没有水流下来,就会停止。
这就是三极管的开关作用。简单的理解和记忆就是:三极管是一个开关器件,但它不是用手来控制,而是用电压(电流)来控制的。因此,三极管有些时候也被称做电子开关(与机械开关相区别)。
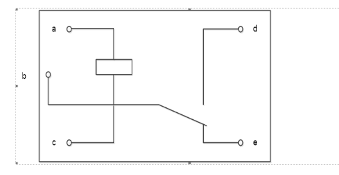
(3) 继电器的内部组成及各个引脚的电路接法

图3.4.3 继电器内部电路图

图3.4.3 继电器引脚逻辑图
继电器就是线圈控制的开关。开关有2-3个接线端。如图3.4.3所示继电器,当AC之间没有5V,线圈没电,这时,B和E通,B和D不通。
当AC之间有5V后,线圈有电,里面的开关动作,B和E断开,B和D导通。
继电器电压和电流不能超过继电器型号所确定的数值,一般为交流220V,电流不超过3A。直流125V,电流不超过5A。
(4)小功率继电器结构原理图

图3.4.4小功率继电器结构原理图
(5)继电器接线举例

图3.4.5继电器接灯泡实例
四、实验内容
1.实验器材接线
本实验所使用的继电器模块实物图如图3.2.6所示。
图3.4.4 继电器模块
将继电器模块安装到开发板上(断电安装),然后用AK100或者JLINK仿真器的一端用USB接口与电脑相连,一端的20Pin的JTAG引脚与NXP LPC2378节点板的J2相连,并给NXP LPC2378节点板上电,如图3.4.5所示。
将继电器传感器模块安装到开发板上(断电安装),然后用J-LINK仿真器的一端用USB接口与电脑相连,一端的20Pin的JTAG引脚与NXP LPC2378节点板的J2相连,并给NXP LPC2378节点板上电,如下图所示:

图3.4.5 继电器试验接口电路
上一篇:基于EasyJTAG仿真器上采用LPC2292单片机实现CAN节点的设计
下一篇:最后一页
推荐阅读
史海拾趣



XC6406PP60DL






京公网安备 11010802033920号